О компании
Ижс
Готовые объекты
Услуги
Строительство фундамента
Монолитный фундамент
Ленточный фундамент
Гидроизоляция фундамента
Винтовой фундамент
Буронабивной фундамент
Укладка дорожек
Заливка дорожек бетоном
Укладка брусчатки
Укладка тротуарной плитки
Печатный бетон
Облицовка дома
Отделка фасада штукатуркой
Декоративная штукатурка
Облицовка фасада кирпичом
Облицовка декоративным камнем
Кровля крыши
Односкатная крыша
Двускатная крыша
4-х скатная крыша
Крыша из металлочерепицы
Керамическая черепица
Фальцевая кровля
Мягкая кровля
Кровля из профнастила
Кровля из ондулина
Водосточная система
Монтаж систем
Установка септика
Монтаж водоснабжения
Дренаж
Газификация
Электромонтажные работы
Монтаж отопления
Монтаж котлов отопления
Монтаж канализации
Кладка стен
Кладка газосиликатного блока 300 мм
Кладка керамического блока 380 мм
Кладка керамзитобетонного блока 300 мм
Строительство заборов
Проекты
Площадь
Узкие
До 100 м2
До 120 м2
От 100 м2 до 200 м2
От 300 м2 до 400 м2
От 400 м2 до 500 м2
От 500 м2
Этажность
Одноэтажные
Двухэтажные
Трехэтажные
Полутораэтажные
С цокольным этажом
С мансардой
С подвалом
Материал
Из кирпича
Из блоков
Из пеноблоков
Из газоблоков
Из газобетона
Из газосиликата
Из силикатных блоков
Из керамзитоблоков
Каркасные
Каркасно-панельные
Каменные
Стиль
Барнхаус
Таунхаус
Шале
Хай-тек
Скандинавский стиль
В Английском стиле
Классика
Фахверк
Современные
Модерн
Минимализм
Райт
Барокко
Средневековый
Европейский
Финский
Русский
Американский
Фундамент
6 х 6
6 х 8
6 х 9
7 х 8
7 х 9
8 х 8
8 х 9
8 х 10
8 х 11
9 х 9
9 х 10
9 х 11
9 х 12
10 х 10
10 х 12
11 х 11
12 х 12
Тип строения
Коттеджи
Для постоянного проживания
Дачные дома
Гостевые
Для охраны
Для узких участков
На 2 семьи
Особенности
С эркером
С террасой
С верандой
С балконом
Со вторым светом
С навесом для машины
С зимним садом
С сауной
С панорамными окнами
С котельной
С гаражом
Без гаража
С баней
С бассейном
С кабинетом
С гардеробной
Крыша
С односкатной крышей
С двухскатной крышей
С четырехскатной крышей
С плоской крышей
С мансардной крышей
С ломаной крышей
Коммерческое строительство
Ипотека
Контакты
Адрес:
г. Калининград, ул. Римская 33, к. 3, офис 1
График работы
Пн-Вс: 09:00-18:00 g
Контакты:
+7 995 326 05 40
sk-ankor39@mail.ru
VK
TELEGRAM
связаться
VK
TELEGRAM
+7 995 326 05 40
Главная
к каталогу проектов
D6031 Проект дома из кирпича
D6031
360.1 м²
Стоимость проекта
45 000 ₽
В стоимость входит
Комплект архитектурно-строительных чертежей (АС)
Посмотреть дополнительные опции
Купить проект
Стоимость строительства
~0 ₽
Посмотреть подробные комплектации
Вопрос по строительству
О проекте
Состав проекта
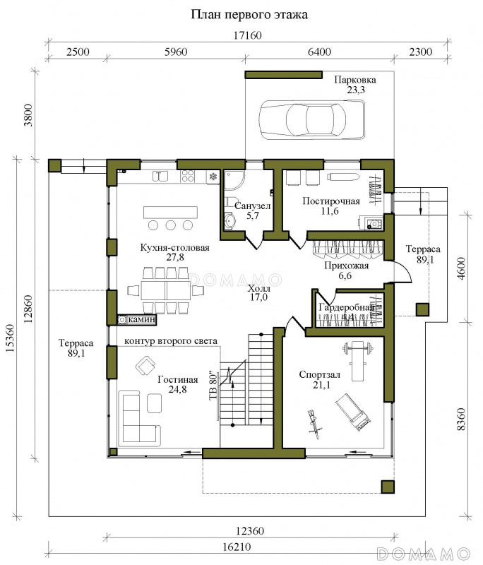
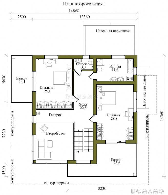
Планы помещений
План 1 этажа
План 2 этажа
Технические характеристики
Общие
Материал стен
Кирпич
Общая площадь
360.1 м²
Жилая площадь
114.2 м²
Площадь застройки
285.2 м²
Количество жилых комнат/спален
2
Этажи
2 этажа
Гараж
Пристроенный навес
Количество машин
1
Подвал / цокольный этаж
Без подвала
Ширина дома
17.2 м
Длина дома
19.1 м
Высота в коньке
8 м
Кровля
Рулонная кровля
Облицовка внешних стен
Мокрая штукатурка
Толщина несущих наружных стен
380 мм
Межэтажные перекрытия
Монолитные
Внутренние не несущие перегородки
Кирпичные
Фундамент
Малозаглубленные ростверки
Терраса
Терраса крытая
Стиль
Минимализм
,
Современный
,
Хай-тек
Дополнительные
Окна
Окна до пола
,
Панорамные окна
Камин
Есть
Сауна/баня внутри
Нет
Площадь гостиной
24.8 м²
Площадь кухни
27.8 м²
Количество санузлов
3
Окно в ванной комнате
Есть
Постирочная
Есть
Спортзал / детский / игровой зал
Есть
Кладовая
1
Балкон / лоджия
Балкон
Входит в стоимость
Цена, руб.
Сроки, дней
Комплект архитектурно-строительных чертежей (АС)
Входит в стоимость
Готов к отправке
Марка,
№№ листов
Наименование чертежей и спецификаций
ОЧ-1
Общая часть: общие пояснения, объемно-планиров. показатели
АС-
1.
Общие данные: состав архитектурно-строительного. раздела. Условные обозначения
АС-
2.
Общие данные: указания по производству работ; расходы основных строительных материалов
АС-
3.
Общий вид
АС-
4.
Фасад по оси А
АС-
5.
Фасад по оси 1
АС-
6.
Фасад по оси В
АС-
7.
Фасад по оси 4
АС-
8.
План 1 этажа
АС-
9.
План 2 этажа
АС-
10.
Разрез 1-1
АС-
11.
Разрез 2-2
АС-
12.
Разрез 3-3
АС-
13.
План подошвы фунд ростверков между отм. –1.000 и –0.750
АС-
14.
План внешних фундаментных ростверков, и внутреннего фунд. ростверка
АС-
15.
План фунд. плиты с отм. верха 0.000
АС-
16.
Сечение фундаментных конструкций А-А. Типовые каркасы ростверков и подошвы
АС-
17.
Сечение фундаментных конструкций Б-Б.
АС-
18.
Сечение фундаментных констр. В-В. Типовой каркас роств. АКР-1.
АС-
19.
Расход арматуры на фунд. конструкции. Расход бетона. Указания по заливке фундамента
АС-
20.
Сечения перемычек над проемами 1,2 этажей.
АС-
21.
План перемычек над проемами 1 этажа
АС-
22.
Спецификация перемычек.
АС-
23.
Спецификация оконных и дверных блоков.
АС-
24
ИСКЛЮЧЕН
АС-
25
Устройство пола 2-го этажа.
АС-
26-1
План плиты перекрытия
АС-
26-2
Сечение по плите перекрытия. Спец. Арматуры на плиту перекрытия.
АС-
27
План стропил
АС-
28
План кровли
АС-
29
Указания по монтажу покрытия. Специфик. Кров. мат-лов и комплектующих
АС-
30
Спецификация эл-тов стропильной с-мы, и каркасных стен мансарды
АС-
31
Основная стропильная ферма СФ-1.
АС-
32
Укороченные стропила по оси 3: узлы, сечение
АС-
33
Стропила козырька над лоджией: узлы, сечения
АС-
34
Вальма – сечение. Стропила крыльца - сечение
АС-
35
Фонарные окна кровли: узлы и сечения
АС-
36
Указания по кладке стен. Типовая конструкция стен, «пирог» кровли.
АС-
37
Стена по оси «1».
АС-
38
Стена по оси «4».
АС-
39
Стена по оси «А».
АС-
40
Стена по оси «Б».
АС-
41
Стена по оси «В».
АС-
42
Эскизы труб-дымоходов
АС-
43
ППР по выводу дымовых каналов на кровлю.
АС-
44
Указание по монтажу цем.-песчаной черепици – начало.
АС-
45
Указание по монтажу цем.-песчаной черепици – продолжение.
АС-
46
Указание по монтажу цем.-песчаной черепици – окончание.
Опции проекта вы можете дозаказать в корзине при оформлении заказа
Дополнительные опции
Готово к продаже
Цена, руб.
Сроки, дней
Паспорт рабочего проекта
5 000 ₽
3 рабочих дня
купить
Дополнительная копия проекта формата А3
4 000 ₽
Готов к отправке
купить
Электронная копия проекта (скан распечатанной версии)
4 000 ₽
3 рабочих дня
купить
к каталогу проектов
Проекты предоставлены порталом
Domamo.ru